Neubau Feuerwehrgerätehaus

Freiwillige Feuerwehr Reichenau

 

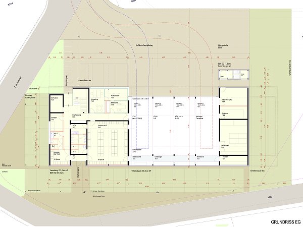
Am 9. November 2012 war der Spatenstich zum Neubau Feuerwehrgerätehaus (FGH) der Freiwilligen Feuerwehr Reichenau. Hier finden Interessierte Infos mit Plänen und erste Einblicke. In Zukunft wird hier über den Baufortschritt berichtet.

 

 

Pläne vom Neubau FGH

 

 

 

 

 

 

 

 

Zurück zum Seitenanfang

Letzte Aktualisierung am 18.11.2012

© 2012, Freiwillige Feuerwehr Reichenau, Homepage: http://www.feuerwehr-reichenau.de